Zurück
Family
Verfügbare Größen: 130m², 145m², 160m². Das Planungsbeispiel bezieht sich auf 130m².
Erdgeschoss:
Vorraum
10,37 m²
Abstellraum
4,41 m²
Haustechnik
3,88 m²
Küche
8,69 m²
Essen/Wohnen
29,30 m²
Zimmer
11,19 m²
Wohnfläche Erdgeschoss
71,83 m²
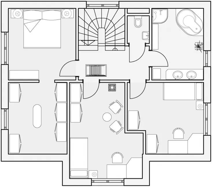
Obergeschoss:
Zimmer
13,22 m²
Zimmer
13,19 m²
Zimmer
11,19 m²
Schrankraum
10,47 m²
Galerie
5,20 m²
WC
2,41 m²
Bad
10,45 m²
Wohnfläche Obergeschoss
66,13 m²


Erdgeschoss

Obergeschoss
